Mountain Homes Realty
Enter City, Zip or MLS

6940 state hwy 229

Barbourville, KY 40906

$199,900

1 BED 1 BATH
515 SQFT9.02 AC LOT
Residential - Single Family
Image 1: 1-web-or-mls-DJI_0626
Image 2: 30-web-or-mls-1
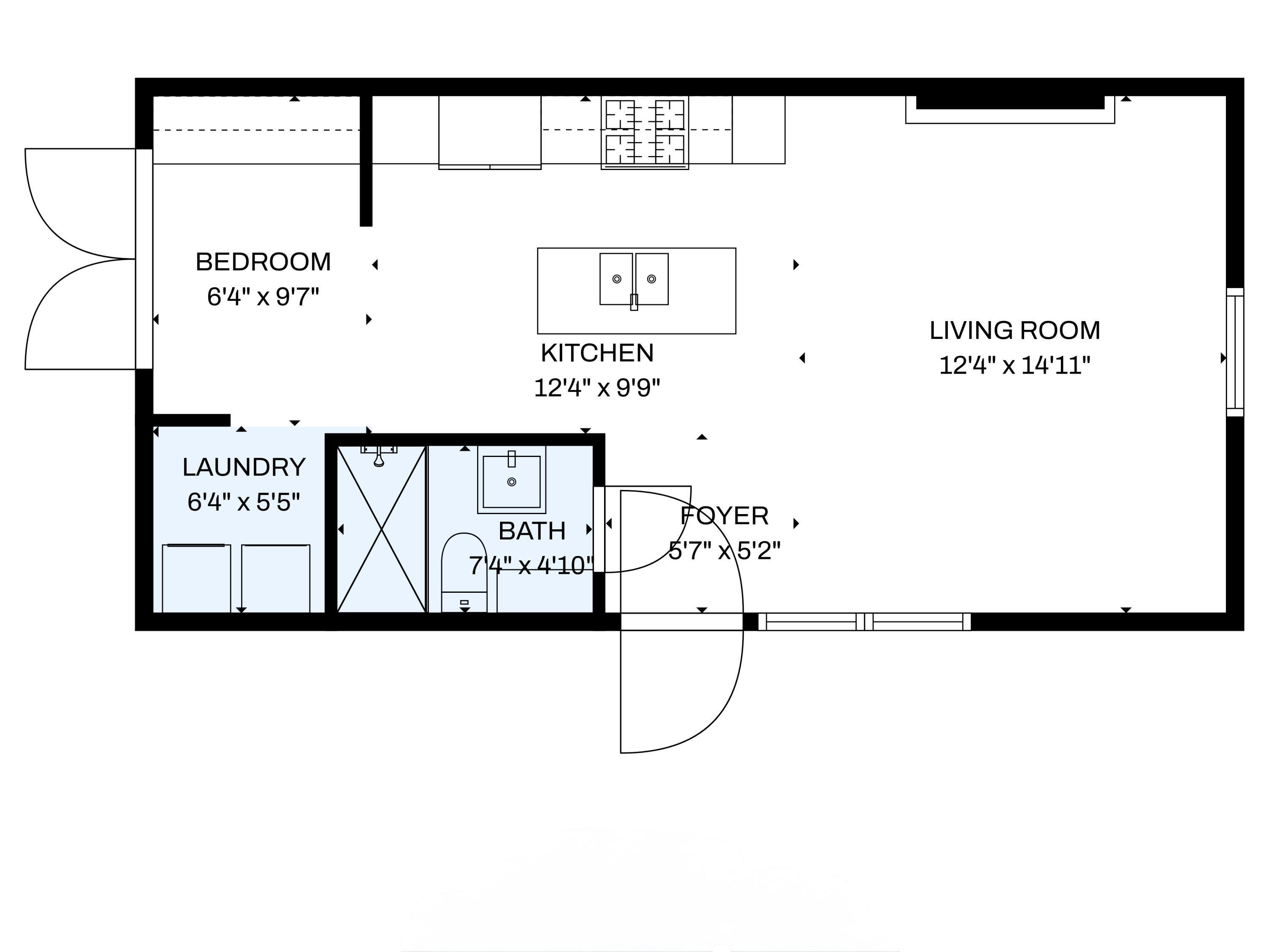
Image 3: all_floors_6940_kentucky_highway_229_bar
Image 4: 40-web-or-mls-_DSC4403 copy
Bedrooms 1
Total Baths 1
Full Baths 1
Square Feet 515
Acreage 9.02
Status Active
MLS # 26003053
County Knox
More Info
Category Residential - Single Family
Status Active
Square Feet 515
Acreage 9.02
MLS # 26003053
County Knox
Tucked behind a private gate and set against the hillside on 9.02 surveyed acres, this fully reimagined modern cabin retreat delivers luxury tiny living without sacrificing comfort, style, or convenience. If you've been waiting for something different, something intentional, something unforgettable, this is it. Completely gutted and rebuilt, this 515 sq ft custom home was designed to live big. The open concept layout flows effortlessly, anchored by a stunning custom kitchen featuring a gas range, modern cabinetry, and a functional island that doubles as a backup propane heating source. Every detail was thought through. From the hardwood floors throughout to the tile bath, this home feels like a boutique hotel suite tucked into the woods. The queen-size Murphy bed transforms the living space in seconds, allowing you to maximize every square foot. A full-size washer and dryer are thoughtfully positioned for true everyday livability. The living area is finished with a wall-mounted TV setup and LED accent lighting surrounding the mantle for a sleek, modern feel. Ceiling fans and a split unit provide efficient heating and cooling year-round, while the owned propane tank offers peace of mind in colder months. The bathroom is next-level for a home this size, complete with a stand-up shower, smart toilet, and smart mirror. It is modern, clean, and elevated. Outside, the charm continues. Board and batten siding paired with metal accents and a metal roof give this home a refined cabin-top aesthetic. A wraparound deck invites you to sit, breathe, and listen to nothing but the woods. When it rains, a natural runoff creates a waterfall effect along the small cliffs and caves scattered across the property. It is peaceful. It is private. It feels like your own hidden retreat. The land itself offers opportunity. There is a small trail system already in place and an additional cleared area where a manufactured home once sat, giving potential for expansion or another dwelling. A nice storage building adds extra functionality. The concrete driveway provides ample parking for multiple vehicles, boats, or side-by-sides. Located just 20 minutes to Corbin and approximately 15 minutes to both London and Barbourville, you get seclusion without isolation. Hospitals, shopping, restaurants, and everyday necessities are all within easy reach. Electric, city water, and septic are already in place. This property is ideal for the minimalist who refuses to compromise on style, the hunter or nature lover seeking a private basecamp, or anyone looking for a modern getaway with room to explore. Opportunities like this rarely come to market. It is not just a tiny house. It is a lifestyle shift. Schedule your private showing and experience it in person.
Location not available

Exterior Features

  • Style Cabin
  • Construction Single Family
  • Garage No
  • Garage Description Driveway
  • Water Public
  • Sewer Septic Tank
  • Lot Description Wooded

Interior Features

  • Appliances Dryer, Gas Range, Washer
  • Heating Electric, Heat Pump, Propane, Space Heater, Propane Tank Owned
  • Cooling Ceiling Fan(s), Electric, Heat Pump
  • Living Area 515 SQFT
  • Year Built 2005
  • Stories One

Neighborhood & Schools

  • Subdivision Rural

Financial Information

  • Parcel ID 052-00-00-015.01

Additional Services

Internet Service Providers

Listing Information

Listing Provided Courtesy of Keller Williams Legacy Group
Copyright 2026, Imagine MLS. All information provided is deemed reliable but is not guaranteed and should be independently verified.
Listing data is current as of 04/02/2026.

Contact Our Agent

By clicking “Submit”, you agree that Mountain Homes Realty, its affiliates, and real estate professionals may contact you by phone, text, or email to any phone number and email address you provided, including by automated means, even if your number is on a federal, state, or our internal Do Not Call list. You also agree to our Terms of Use and Privacy Policy.